平屋の施工事例

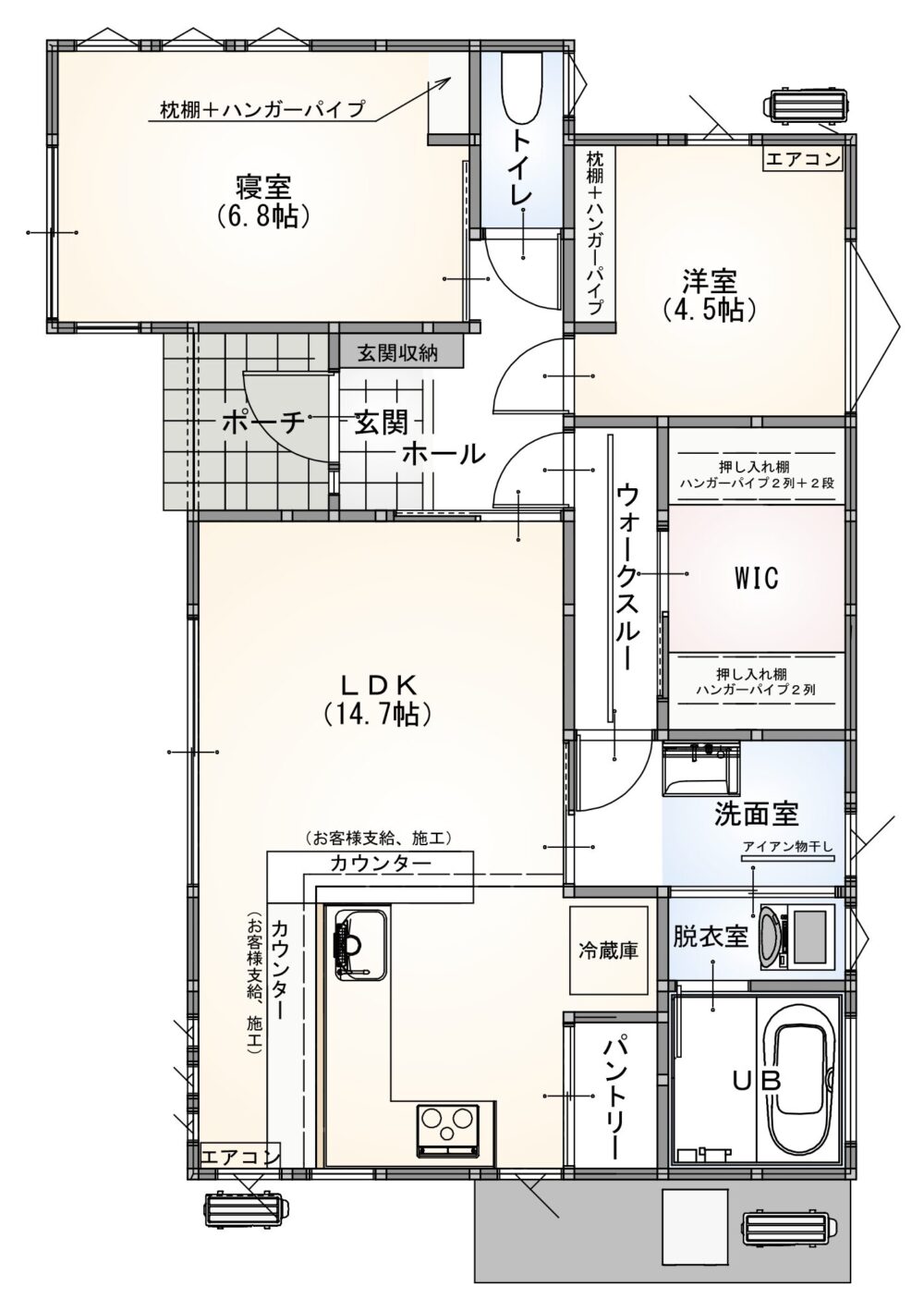
長岡市・20坪 |玄関から滑らかな回遊動線!色味を統一させたおしゃれな2LDK

平屋のモデルハウス見学会

  • 長岡 新町・新組【2階・平屋】同時見学会

    日程:
    11月22日(土) 11月24日(月)、
    11月29日(土) 12月1日(月)

    ※上記日程以外でもご予約受付中!

    参加費無料 駐車場完備
  • 西区 寺尾上・小針南 【平屋2棟】同時見学会

    日程:
    11月22日(土) 11月24日(月)、
    11月29日(土) 12月1日(月)

    ※上記日程以外でもご予約受付中!

    参加費無料 駐車場完備
  • 燕 大曲・杣木【2階・平屋】同時見学会

    日程:
    11月22日(土) 11月24日(月)、
    11月29日(土) 12月1日(月)

    ※上記日程以外でもご予約受付中!

    参加費無料 駐車場完備
  • 西区 大野町モデルハウス

    日程:
    11月22日(土) 11月24日(月)、
    11月29日(土) 12月1日(月)

    ※上記日程以外でもご予約受付中!

    参加費無料 駐車場完備
  • 上越市 春日新田モデルハウス

    日程:
    11月22日(土) 11月24日(月)、
    11月29日(土) 12月1日(月)

    ※上記日程以外でもご予約受付中!

    参加費無料 駐車場完備
商品プラン
見学予約
見学予約